News   Apr 02, 2020
 4.3K     0 
News   Apr 01, 2020
 5.2K     0 
News   Apr 01, 2020
 1.7K     0 

5392-5472 Manson St

Roundabout

Senior Member
Member Bio
Joined
Jul 23, 2007
Messages
4,378
Reaction score
1,712
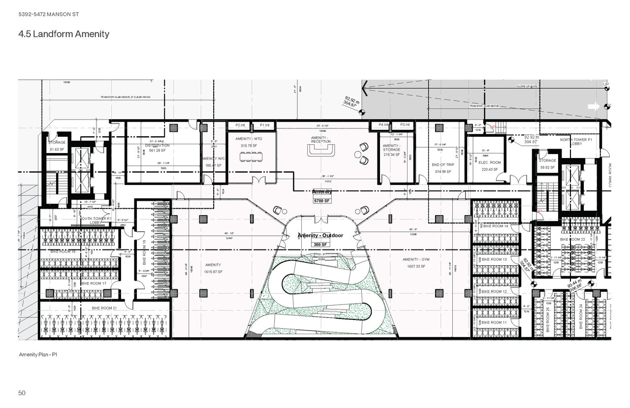
The City of Vancouver has received an application to rezone 5392-5472 Manson St from RS-1 (Residential) District to CD-1 (Comprehensive Development) District. The proposal is to allow for the development of two 18-storey residential buildings over four levels of underground parking. This proposal includes:

  • 248 strata-titled residential units;
  • A floor space ratio (FSR) of 5.6;
  • A floor area of 23,793.4 sq. m (256,110 sq. ft.);
  • A building height of 59.9 m (197 ft.); and
  • 266 vehicle parking spaces and 567 bicycle parking spaces.

5392-5472 Manson St application-booklet_Page_001.jpg
5392-5472 Manson St application-booklet_Page_051.jpg
5392-5472 Manson St application-booklet_Page_054.jpg
5392-5472 Manson St application-booklet_Page_055.jpg
5392-5472 Manson St application-booklet_Page_056.jpg
5392-5472 Manson St application-booklet_Page_057.jpg
5392-5472 Manson St application-booklet_Page_058.jpg
5392-5472 Manson St application-booklet_Page_059.jpg
5392-5472 Manson St application-booklet_Page_060.jpg
 

Back
Top