Roundabout
Senior Member
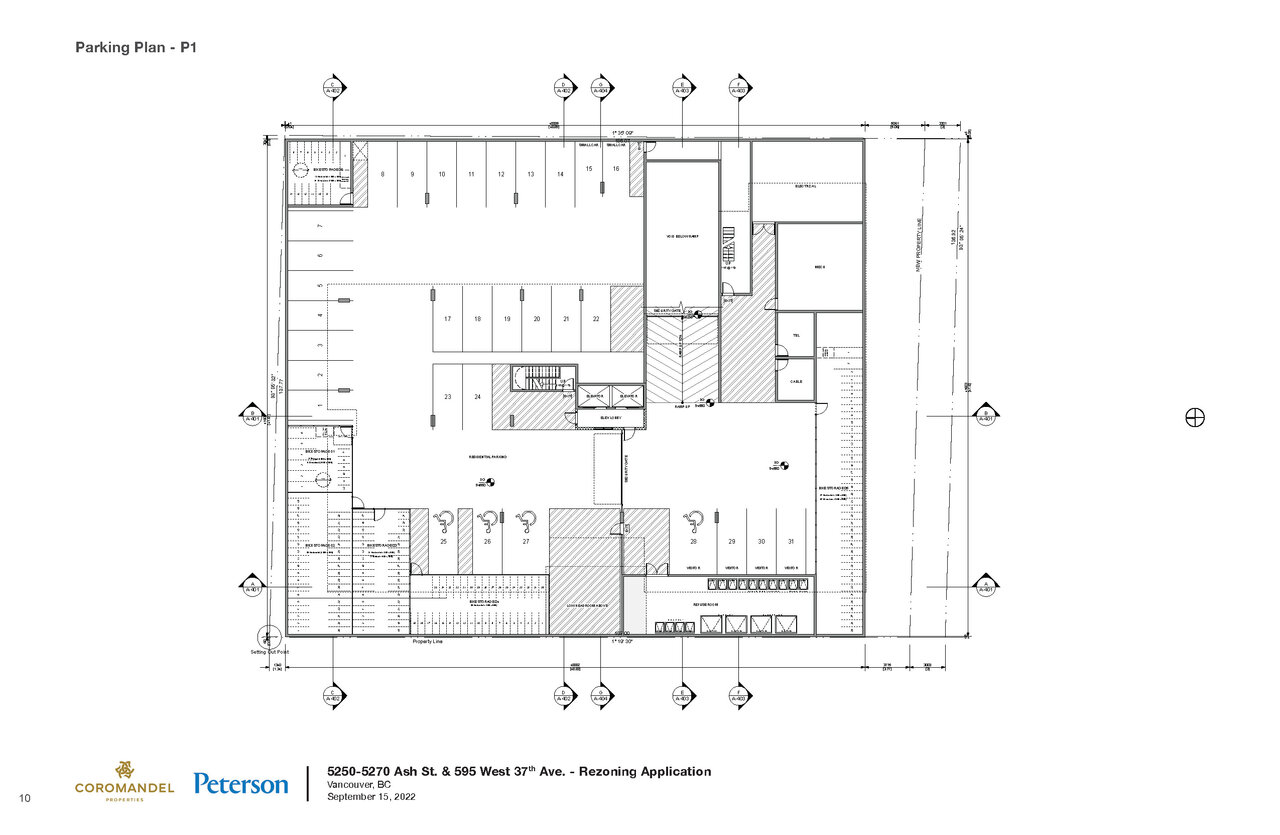
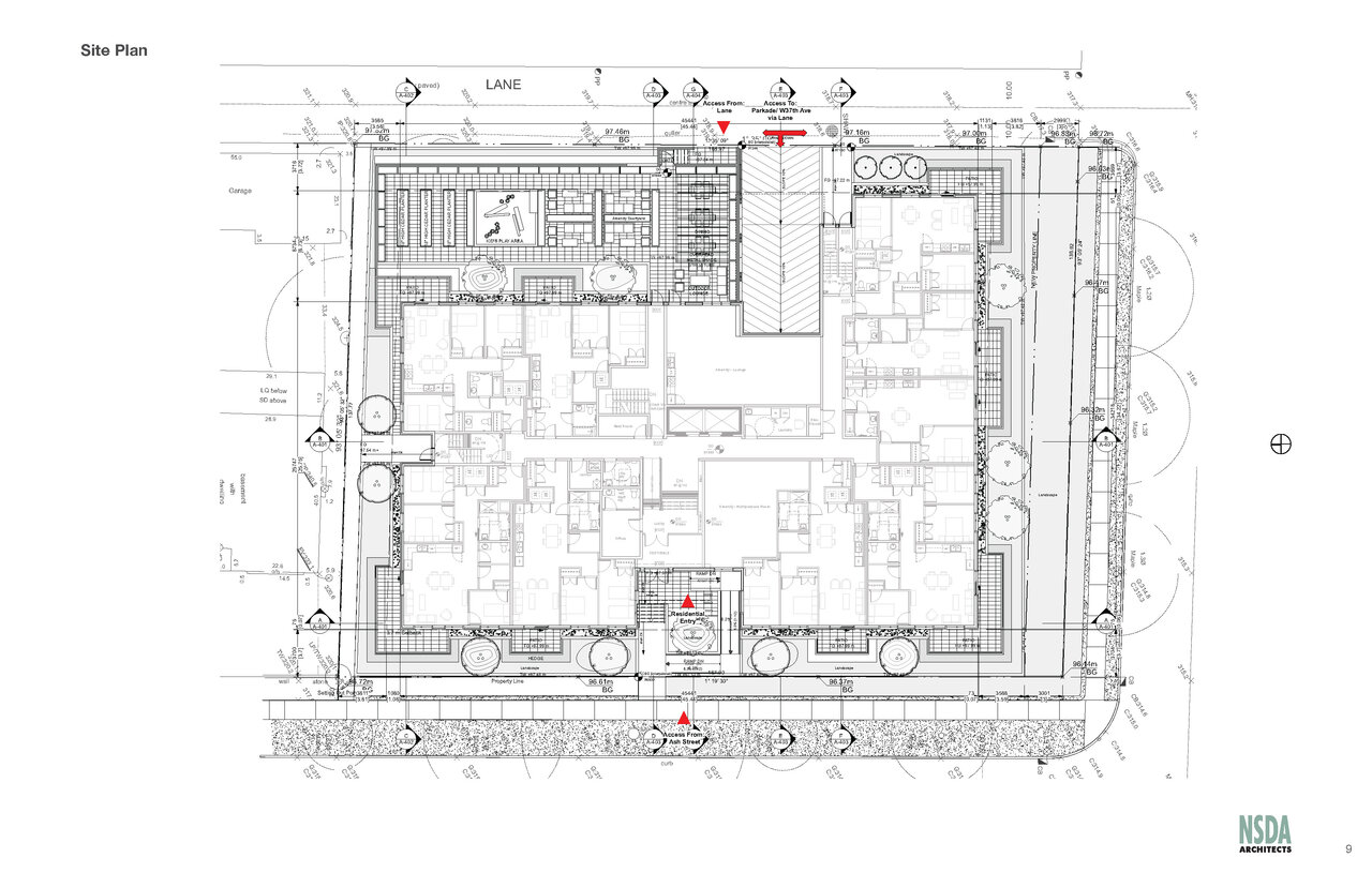
The City of Vancouver has received an application to rezone 5250-5270 Ash St and 595 W 37th Ave from RS-1 (Residential) District to CD-1 (Comprehensive Development) District. Please provide your feedback on the proposal for a six-storey residential building over one level of underground parking. The proposal includes:
- 77 social housing units;
- A floor space ratio (FSR) of 2.97;
- A floor area of 9,237.0 sq. m (99,426 sq. ft.);
- A building height of 22.8 m (75 ft.); and
- 31 vehicle parking spaces and 162 bicycle parking spaces.




